Appartamento in Vendita
Treviso vendesi Appartamento con tre camere.
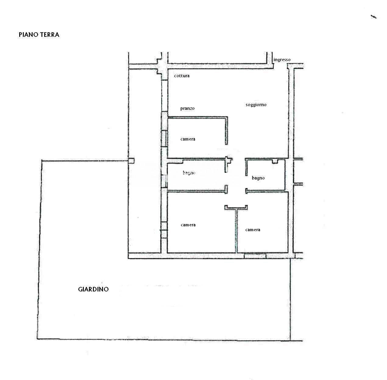
Zona Santa Bona a pochi passi dalle piscine, in zona molto riservata, vendesi Appartamento posto al pino rialzato con giardino privato.
L'immobile è composto da un'ampia zona giorno divisa tra cucina e salotto che si affaccia su un'ampia loggia di oltre 20 mq che a sua volta è collegata al giardino di proprietà di circa 100 mq.
L'Appartamento presenta tre camere da letto e due bagni.
La loggia offre la possibilità di vivere piacevoli momenti all'esterno e di godere del giardino privato.
Al piano interrato è presente un garage di circa 15 mq oltre a un posto auto riservato.
L'immobile è dotato di riscaldamento a pavimento, aria condizionata zona giorno e zona notte.
Il cappotto esterno garantisce un alto grado di isolamento termico, inoltre tutti gli infissi sono dotati di zanzariere e la tapparella in soggiorno è dotata di movimento elettrico.
L'impianto di riscaldamento è suddiviso in tre zone con relativi termostati.
Ottima l'esposizione a sud-est.
Classe energetica
EP glnr: 85.30 kwh/m²













